案例解析














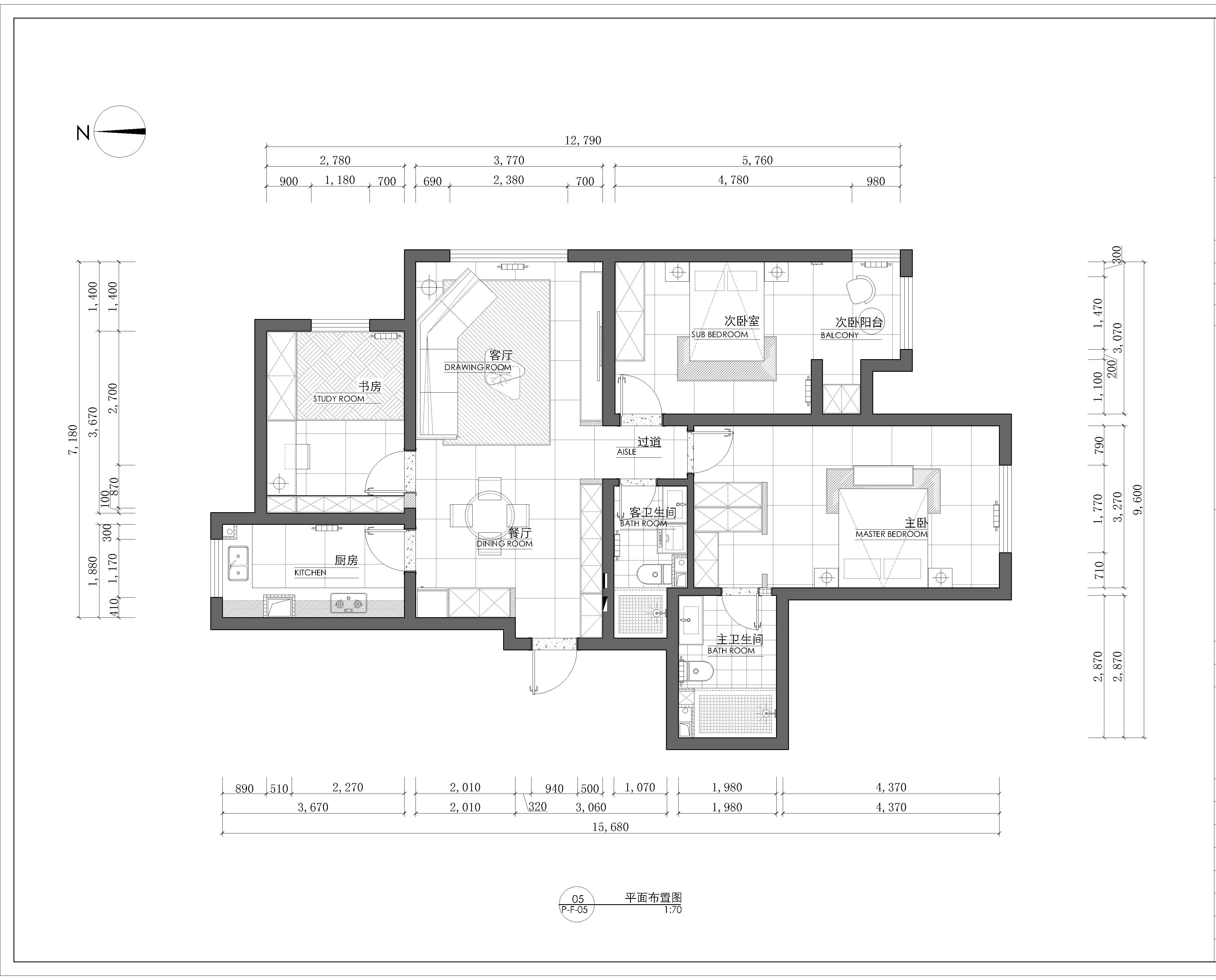
户型分析

中正锦城 134㎡ 现代前卫

71

发布时间:2023-07-31 0606:0707:2424
晋ICP备2021005620号-1 2020 山西肖邦家居有限公司 All Rights Reserved
预约量尺
免费通话
关注我们

扫一扫
关注我们

返回顶部